Características

Chalets

Sup. cubierta 1m
2

Sup. total 1m
2

Código AV-CAS-32
Acerca de la propiedad
Emprendimiento de 5 propiedades a 30 mts del mar. (2 Unidades Vendid@s)
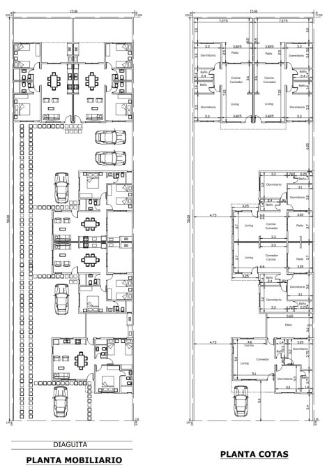
Cada unidad tiene 2 Dormitorios - 2 Baños completos - Cocina - Living Comedor - Entrada de Auto - Patio con parrilla y lavadero.
DETALLE CONSTRUCTIVO DIAGUITA 32
Fundaciones
• Bases céntricas de 0.80 x 0.80
• Bases de medianera de 0.60x 1.00
• Encadenados 0.15 x 0.25
Mamposteria
• Paredes, ladrillo hueco revocado con grueso fratachado y ceresita en el exterior pintado con Revear. Interior grueso y terminación con enduido/masilla pintado en blanco.
Plomeria
• Independiente en cada unidad con pozo ciego para baños y pozo ciego para cocina y lavadero
• Tanque de agua con bajadas independientes para agua fría y caliente (Cada una con su respectiva llave de paso y llave de paso general en el colector de tanque). Llave de paso de agua fría antes de la entrada a la casa con fácil acceso y de agua caliente a la entrada del termo. Llave de paso de agua en cada baño independiente.
• Todo termofusion
Gas
• Pico de gas para cocina y otro en el comedor
• Todo termofusion
Sistema eléctrico
• Cables de 2.5 mm (fase, neutro,tierra) y de 1,5 mm para retornos.
• Linea Jeluz Verona
• Se entrega todo con portalámparas
• Circuito de A/A independientes en el comedor y tomas para caloventores en los dormitorios
Aberturas y Puertas
• Aberturas de aluminio de color negro línea rotonda 640 con contramarcos integrados
• Puerta de entrada Oblack
• Puertas de interiores línea metalplac
Tiranteria
• Techo de madera; pino 2x5 cepillado, machimbre ½x5 envenenado y con 3 manos de de impregnante tersuave en color caoba (se puede optar por otro tono pero es el que mejor queda)
• Aislante de burbuja aluminizado
• Chapa cincalum
Otros
• Ceramicas a elección del comprador (Con opción a cambiar por porcelanato con un costo extra)
• Muebles de cocina en melanina (color a elección) bajo mesada y alacena. Todo sobre banquina de material (no va con patas)
• Mesada en granito con bacha de acero inoxidable
• Cocina escorial candor blanca (gas envasado)
• Griferia Peirano
• Termotanque eléctrico de 60/65 litros con circuito independiente
• Bomba de agua con circuito independiente
• Placares en los 2 dormitorios con puertas integrales, corredizos y con manojos de aluminio
Ubicación